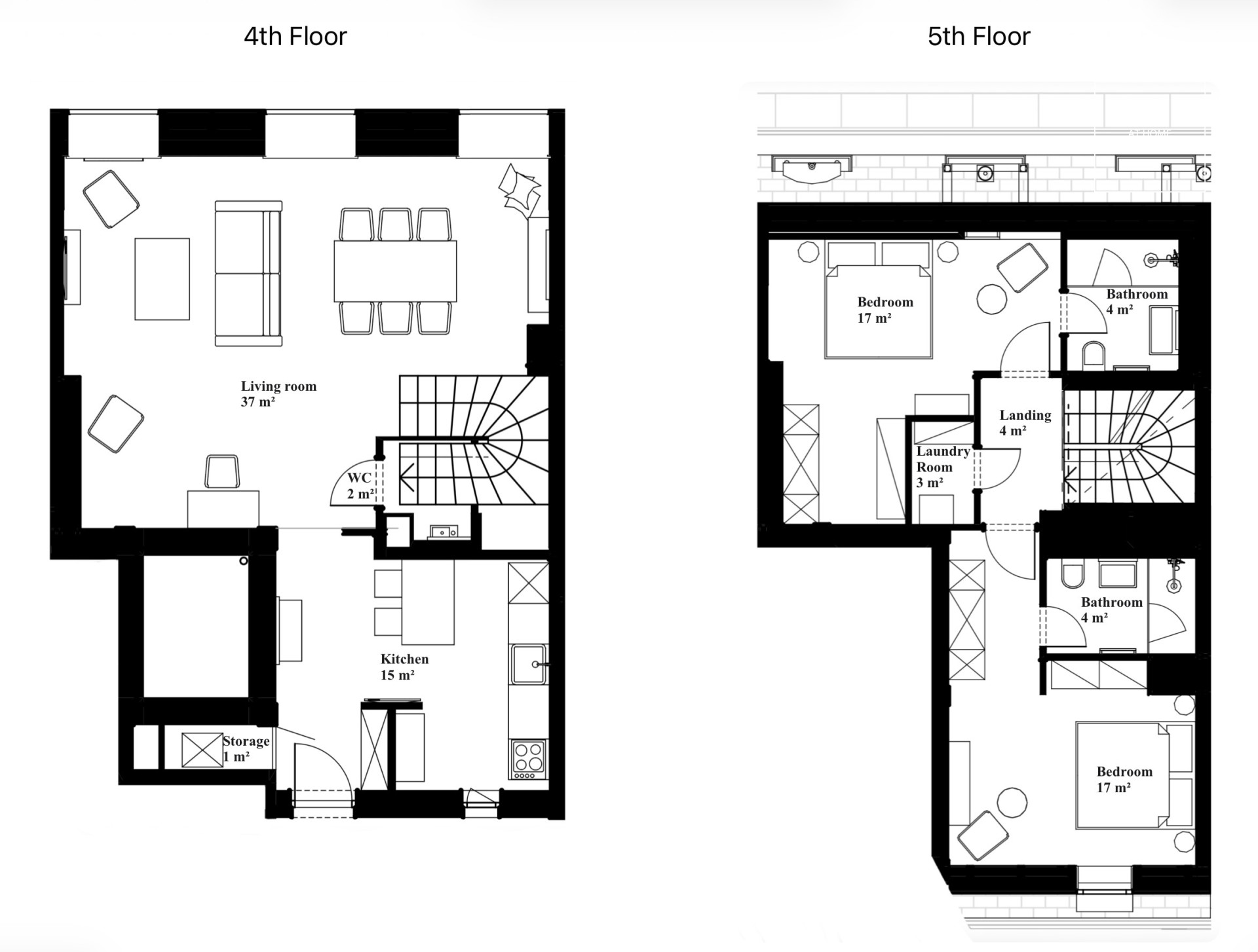
Budapest egyik legszebb, legimpozánsabb, örökségvédelem alatt álló épületében kínálunk bérbeadásra egy 103.69 nm alapterületű, luxus színvonalon felújított, két szintes 4. emeleti lakást a belvárosra néző panorámával.
Az alsó szinten hatalmas nappali, modern gépekkel ellátott amerikai konyha és étkező, valamint mosókonyha található, a felső szinten pedig két hálószoba, két fürdőszoba és egy gardrób kapott helyet.
Az épületben várhatóan 2024 végétől 0-24 portaszolgálat, kamerarendszer, kozmetika, szauna, valamint törökfürdő fogja garantálni a lakók kényelmét. A kiváló energiahatékonyságú ingatlan fan-coil hűtés-fűtéssel és szigetelt ablakokkal felszerelt, így az alacsony rezsi garantált. A lakás magas minőségű bútorokkal berendezett, ezzel garantálva a klasszikus és a modern stílusjegyek tökéletes összhangját.
Parkolási lehetőség az utcán adott, vagy a közelben bérelhető.
At Home Ingatlanszakértő
Luxuslakás kiadó a belváros elegáns neoreneszánsz palotájában Budapest VI. kerület, Terézváros
Sütiket használunk, hogy a lehető legjobb felhasználói élményt nyújtsuk Önnek. Emellett lehetővé teszik számunkra a felhasználói viselkedés elemzését is, hogy folyamatosan javíthassuk a webhelyet az Ön számára.
Nem találta meg, amit keresett? Segítünk!
Kedves ügyfeleink, látogatóink!
Irodánk az ünnepi időszakban megváltoztatja nyitvatartását.
Minden kedves ügyfelünknek és partnerünknek kellemes karácsonyi ünnepeket és egészségben gazdag, boldog új évet kívánunk !
Az At-Home Budapest Csapata
19. dec
Zárva
20. dec
8.30-16.00
21. dec
8.30-16.00
22. dec
9.00-16.00 ügyeleti rend
23. dec
Munkaszüneti nap
24. dec
Ünnepnap
25. dec
Ünnepnap
26. dec
Ünnepnap
27. dec
10.00-16.00 ügyeleti rend
28. dec
10.00-16.00 ügyeleti rend
29. dec
10.00-16.00 ügyeleti rend
30. dec
10.00-16.00 ügyeleti rend
02. jan
Munkaszüneti nap
03. jan
Munkaszüneti nap
04. jan
Munkaszüneti nap
05. jan
8.30-17.00
06. jan
8.30-17.00
Kedves Ügyfeleink és Munkatársaink!
Az At Home Budapest csapata úgy határozott, hogy felelős döntést hoz, és a COVID-19 járvány kitörésének ideje alatt korlátozza működését. Meggyőződésünk, hogy ez a döntés mindenki egészségét szolgálja, és hozzájárul ahhoz, hogy ezen a nehéz időszakon minél hamarabb túllendülhessünk.
Szolgáltatásaink jelentős része zavartalanul folytatódik - igénybevételükről a +36 20 262 7864 telefonszámon érdeklődhettek.
Ebben az időszakban cégünk három ingatlanbejárási alternatívát tesz lehetővé:
Az ingatlanbejárás során a tulajdonos és az ingatlanközvetítő az ingatlanon kívül marad, míg az érdeklődő egyedül tekinti meg az ingatlant (természetesen kérjük, hogy ezt maszkban és kesztyűben tegye meg, illetve ne nyúljon semmihez), majd az ingatlanon kívül, szigorúan tartva a 2 méteres távolságot, a tulajdonos és az ingatlanközvetítő válaszol a felmerült kérdésekre.
A tulajdonossal időpontot egyeztetünk az ingatlan megtekintésére, mely során az ingatlanközvetítő fizikailag nem lesz jelen, helyette videochat/facetime formájában tud majd közvetíteni az érdeklődő és a tulajdonos között. Az ingatlan megtekintése az 1. pontban leírtaknak megfelelően zajlik: az érdeklődő egyedül tekinti meg az ingatlant, a szükséges óvintézkedések betartásával.
Az ingatlanközvetítő videochat/facetime alkalmazás segítségével virtuális túra keretében mutatja be az ingatlant az érdeklődőnek.
Minden tőlünk telhetőt megteszünk azért, hogy biztonságban és egészségben tudhassuk kollégáinkat, hogy mihamarabb visszatérhessünk a régi kerékvágásba, így ezúton szeretnénk titeket is erre buzdítani. Rendeszeresen mossatok kezet, fertőtlenítsetek mindent, és ami a legfontosabb: #maradjatokotthon!