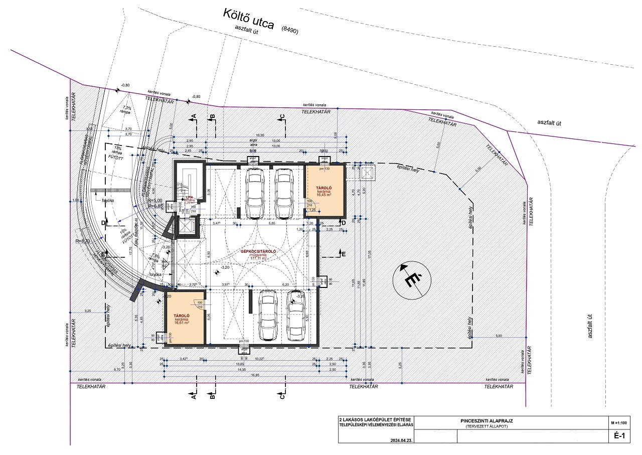
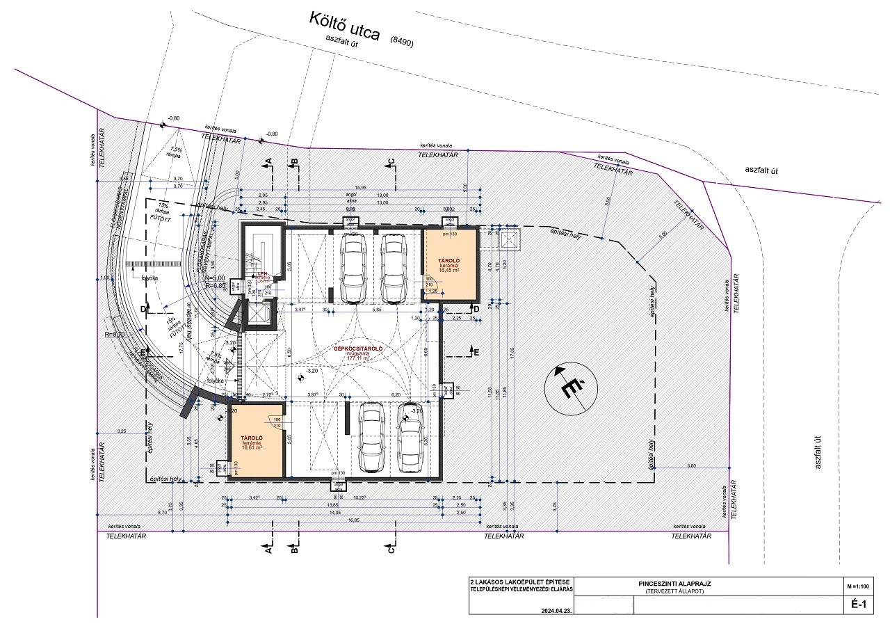
Im 12. Bezirk von Budapest, auf dem Svábhegy, bieten wir ein 1.067 m² großes Eckgrundstück zum Verkauf an, das sich für den Bau eines Einfamilienhauses, eines Doppelhauses oder eines Wohngebäudes mit drei Wohneinheiten eignet. Das Grundstück verfügt über eine endgültige Baugenehmigung für ein Zweifamilienhaus. Laut den genehmigten Plänen beträgt die zulässige Bebauung über Geländeniveau 317 m², unter Geländeniveau weitere 218 m². Die entsprechenden Planunterlagen sind im Kaufpreis enthalten.
Bebauung über Geländeniveau: 20 %
Bebauung unter Geländeniveau: 35 %
Allgemeine Geschossflächenzahl: 0,4
Mindestgrünflächenanteil: 65 %
Maximale Gebäudehöhe: 6,5 m
Straßenfrontbreite: 43 m
Auf dem Grundstück befindet sich ein kleines Gebäude, das abgerissen werden soll.
Anschlüsse für Wasser, Strom und Kanalisation befinden sich auf dem Grundstück, während Gas in der Straße verfügbar ist.
At Home BetreuerIn
Corner plot with building permit is for sale in District XII, Svábhegy, Budapest
We use cookies to provide you with the best possible experience. They also allow us to analyze user behavior in order to constantly improve the website for you.
Konnten Sie nicht finden, wonach Sie gesucht haben?
Ünnepi nyitvatartás/Christmas Opening Hours
Dear Clients and Associates,
At Home Budapest decided to make the responsible choice and restrict it's operation during the outbreak of COVID-19.
We are convinced that it is a choice that benefits everyone's health and will help us get through these difficult times sooner.
In the meantime, many of our services are still available. For those who are interested, give us a call on +36 20 262 7864.
Regarding the property visits in this period, our company offers three different options:
During the visit, the owner and the realtor stay outside while the inquiring party views the property (wearing a mask, rubber gloves, and of course, not touching anything). After the tour, the realtor and the owner answer any emerging questions, all while strictly keeping a 2 meter distance.
We set up an appointment for the property visit, in which the realtor is not physically present - instead, they join the rendezvous via facetime or videochat. The visit itself goes by the same routine as in option 1: the inquiring parties enter alone, all while keeping themselves to the necessary precautions.
The inquiring party is not physically present, instead, our realtor gives a virtual tour via facetime or videochat.
We will do our best to stay healthy and stay safe so we can bounce back to normal as soon as possible - so should you! Wash your hands regularly, disinfect everything, and most importantly, #stayhome!