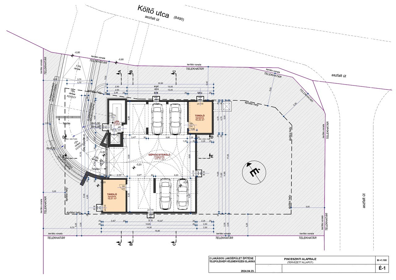
In Budapest’s 12th district, on Svábhegy, we offer for sale a 1,067 m² corner plot suitable for the construction of a family house, a semi-detached house, or a residential building with three apartments. The plot comes with a final building permit for a two-apartment residential building. According to the approved plans, the permitted above-ground built-up area is 317 m², with an additional 218 m² below ground. The purchase price includes the complete design documentation.
Buildability above ground: 20%
Buildability below ground: 35%
General floor area ratio: 0.4
Minimum green area ratio: 65%
Maximum building height: 6.5 m
Street frontage: 43 m
There is currently a small building on the plot that is intended for demolition. Utilities such as water, electricity, and sewage are available on the plot, while gas is accessible from the street.
Realitní makléř At Home
Corner plot with building permit is for sale in District XII, Svábhegy, Budapest
We use cookies to provide you with the best possible experience. They also allow us to analyze user behavior in order to constantly improve the website for you.
Nenašli jste, co jste hledali?
Ünnepi nyitvatartás/Christmas Opening Hours
Dear Clients and Associates,
At Home Budapest decided to make the responsible choice and restrict it's operation during the outbreak of COVID-19.
We are convinced that it is a choice that benefits everyone's health and will help us get through these difficult times sooner.
In the meantime, many of our services are still available. For those who are interested, give us a call on +36 20 262 7864.
Regarding the property visits in this period, our company offers three different options:
During the visit, the owner and the realtor stay outside while the inquiring party views the property (wearing a mask, rubber gloves, and of course, not touching anything). After the tour, the realtor and the owner answer any emerging questions, all while strictly keeping a 2 meter distance.
We set up an appointment for the property visit, in which the realtor is not physically present - instead, they join the rendezvous via facetime or videochat. The visit itself goes by the same routine as in option 1: the inquiring parties enter alone, all while keeping themselves to the necessary precautions.
The inquiring party is not physically present, instead, our realtor gives a virtual tour via facetime or videochat.
We will do our best to stay healthy and stay safe so we can bounce back to normal as soon as possible - so should you! Wash your hands regularly, disinfect everything, and most importantly, #stayhome!